ioboard
Table of Contents
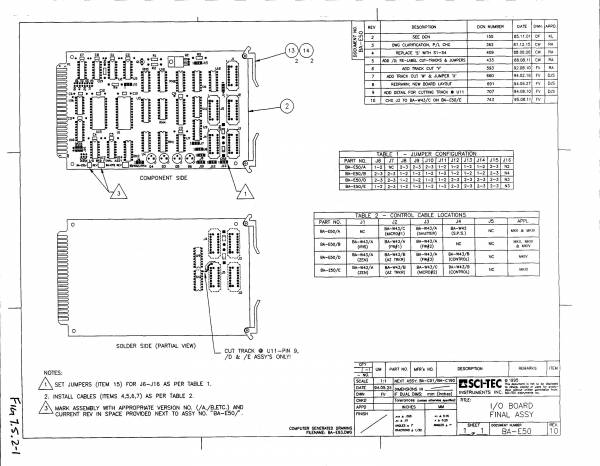
Input/Output Board
The input and output board deals with all the control of the Secondary Power Supply (SPS) lamp, motor, and control buttons for the brewer. These boards can be configured to different type of board depending on the need. This is usually determined output it is used for (see). There mainly two types of board being used, the original Sci-Tech board and the IOS board. The major differences are the IOS board has made it easier to change board types by using different jumpers where as the original Sci-Tech boards requires traces to be cut or jumper.
Sci-Tech IO Boards
IOS Universal IO Boards
Ribbon locations
The table below shows what ribbon should be connected to which board/connectors
| Part# | J1 | J2 | J3 | J4 | J5 | MKII | MKIV | MKIII | MKIII+FW3 |
|---|---|---|---|---|---|---|---|---|---|
| BA-E50/A | NC | Micrometer | Shutter | SPS | NC | X | X | X | |
| BA-E93 | NC | Micrometer | Shutter | SPS | FW#3 | X | |||
| BA-E50/B | Iris | FW#1 | FW#2 | NC | NC | X | X | X | X |
| BA-E50/C | Zenith | Azimuth | NC | Control | NC | X | |||
| BA-E50/D | Zenith | Azimuth | FW#3 | Control | NC | X | |||
| BA-E50/E | Zenith | Azimuth | Micrometer#2 | Control | NC | X | X |
ioboard.txt · Last modified: 2025/04/01 10:59 by reno






